Стандартный заказ столешницы для готового кухонного гарнитура.
Привычнее думать, что эти две детали всегда идут в комплекте. Но сейчас многие выбирают отдельно гарнитур и отдельно столешницу. Конструкцию и наполнение модулей можно заказать где угодно, а столешницу из искусственного камня изготавливают далеко не все мебельные компании. Такое изделие выбирают те, кто ценит эстетическую красоту, любит практичные и долговечные вещи. Как говорится, "поставил и забыл".
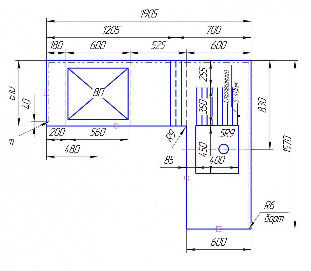
Для этого проекта мы использовали искусственный камень Montelli Cervino D. Цвет камня - бежевый с темными вкраплениями. Дополнительно к столешнице изготовили накладные бортики Н = 40 мм.

В столешнице мы заранее сделали вырез под варочную панель с усилением и термозащитой, а также вырез под интегрированную каменную мойку.


Заказать похожий эскиз или создать уникальный дизайн-проект, вы можете на нашем сайте. Оставьте заявку на звонок или свяжитесь с дизайнером самостоятельно +7 (966) 249-74-00.