Упростить ежедневную уборку и уход за столешницей – легко, выбирая для кухонного гарнитура столешницу из искусственного камня.
Вы без труда можете смахнуть с нее крошки, не переживая, что они попадут в стыки; пролитый кофе не оставит после себя пятен; даже самые едкие моющие средства не навредят вашей новой столешнице.
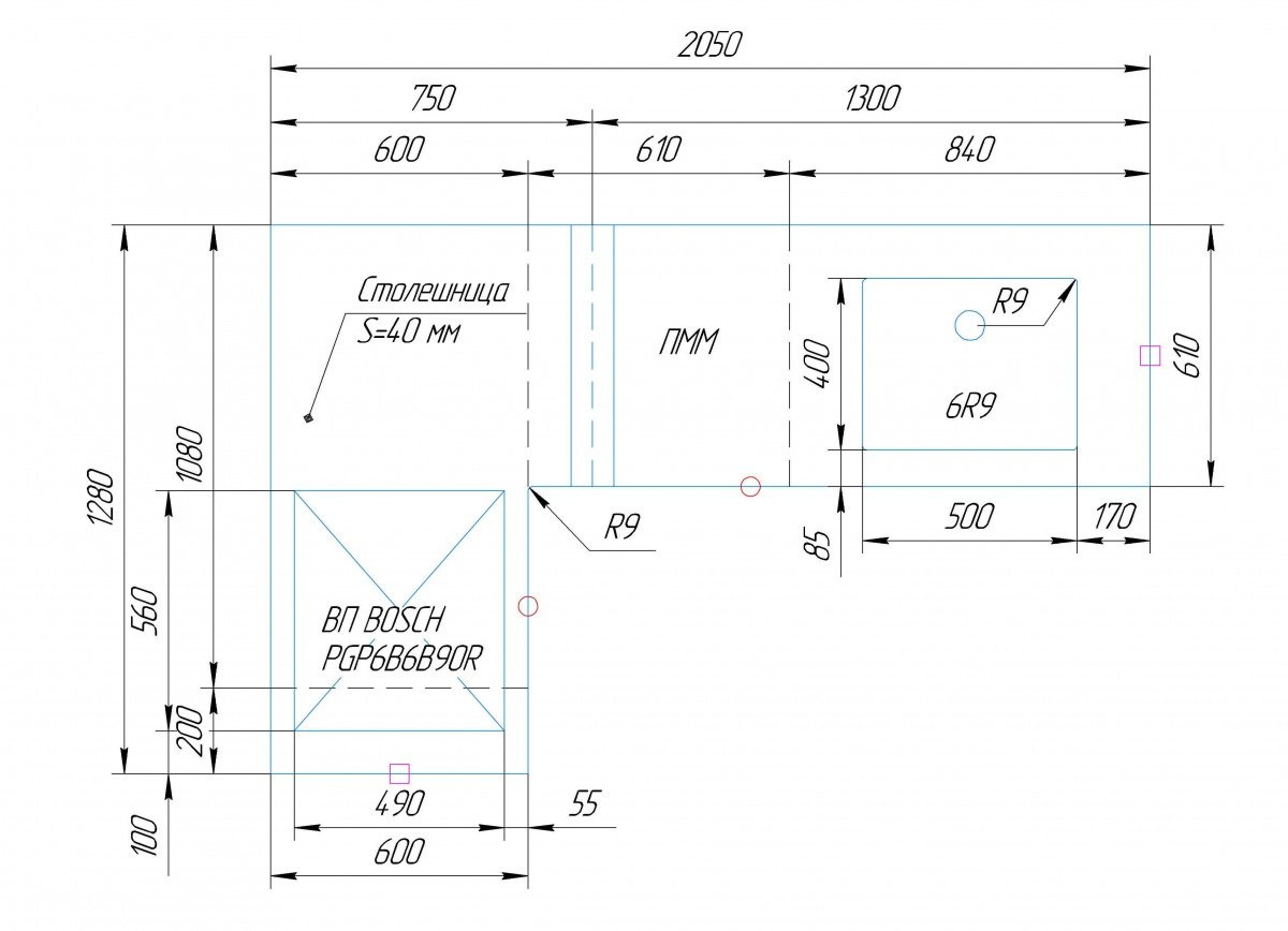
Столешница изготовлена из акрилового камня производителя Hi-Macs, модель G295 в белом цвете. Размер 2050х1280, высота столешницы 30 мм, это ниже стандарта. 
Заранее на столешнице сделали вырез под варочную панель с усилением и термозащитой. Мойка каменная, под интеграцию (размер 500х400). Такой способ установки предотвращает образование грязи в стыках, а также размножение бактерий и грибка.

Заказать похожий эскиз или создать уникальный дизайн-проект, вы можете на нашем сайте. Оставьте заявку на звонок или свяжитесь с дизайнером самостоятельно +7 (966) 249-74-00.