Мы реализовали комплексный проект по изготовлению и установке нескольких элементов интерьера из высококачественного акрилового камня Grandex Cotton Wool A-410. Каждое изделие было тщательно спроектировано и изготовлено с учетом индивидуальных требований заказчика.
Замер и создание чертежа
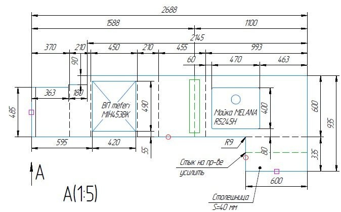
Изделия из искусственного камня можно размещать абсолютно в любой комнате. Мы сняли мерки и изготовили кухонную столешницу размером 2688*935, подоконники и столешницу совмещенную с подоконником.



Результат работы
В ходе работы нами были произведены качественные подоконники из прочных материалов, а светлый оттенок с матовой текстурой Cotton Wool A-410 идеально вписывается в любой дизайн.

Особое внимание уделено столу, который плавно переходит в подоконник и закреплен золотым металлокаркасом. Монтаж осуществлялся с учетом всех особенностей помещения, что позволило добиться аккуратных стыков.
Также создана современная кухонная столешница с интегрированной раковиной, что обеспечивает максимальную функциональность и эстетичный внешний вид кухни.
Каждое решение разрабатывалось индивидуально, чтобы идеально соответствовать требованиям заказчика и подчеркнуть его стиль. Мы гарантируем точность, аккуратность и профессиональный подход на каждом этапе работы, превращая идею в реальность.
Заказать похожий эскиз или создать уникальный дизайн-проект, вы можете на нашем сайте. Оставьте заявку на звонок или свяжитесь с дизайнером самостоятельно +7 (966) 249-76-00.