Акриловая столешница – красивая деталь вашей кухни, которая подчеркнет элегантность гарнитура и, главное, прослужит вам долгие годы.

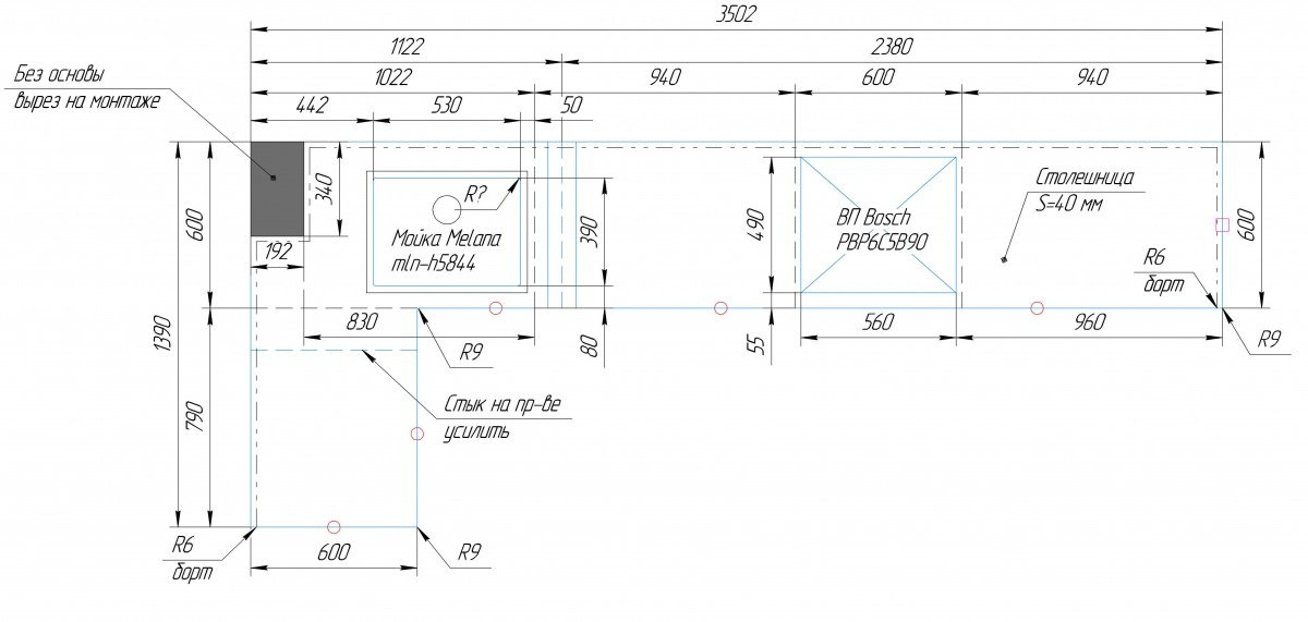
Столешница изготовлена из искусственного камня компании Hi-Macs S201 в бежевом цвете с вкраплениями. Заранее был сделан вырез под варочную панель и мойку. Мойка интегрированная от производителя Melana.


Заказать похожий эскиз или создать уникальный дизайн-проект, вы можете на нашем сайте. Оставьте заявку на звонок или свяжитесь с дизайнером самостоятельно +7 (966) 249-74-00.