Изготовили столешницу из акрилового камня Grandex Shrimp Crust M-717 и установили интегрированную мойку. Цвет камня характеризуется нежными оттенками ракушечного розового и кремового, что придает кухне нежность и элегантность.
Замер и создание чертежа
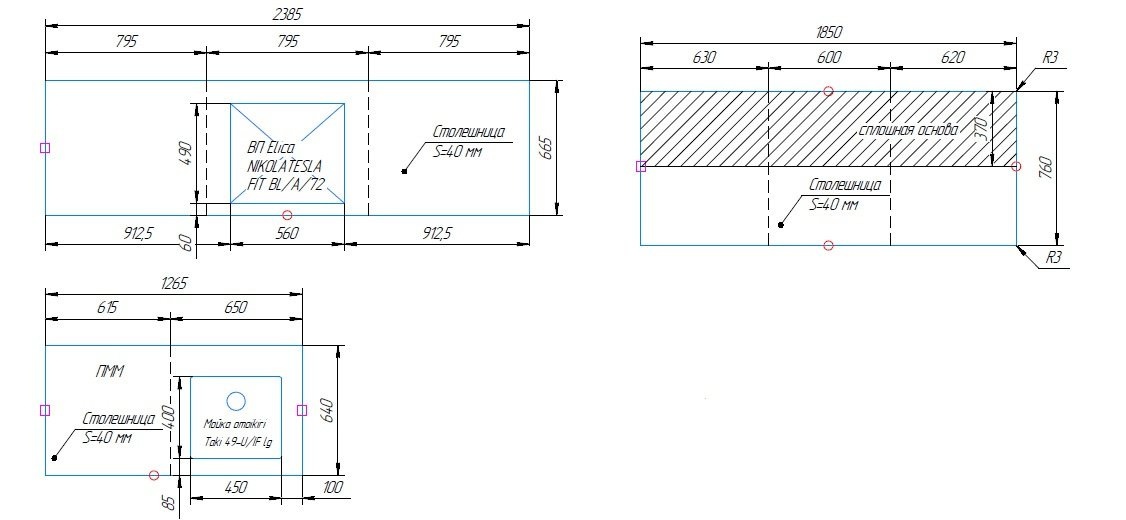
Мы изготовили три столешницы по индивидуальным размерам : 2385*665, 1850*760, 1265*640.
Под одну из них был сделан вырез под варочную панель с усиленной термостойкой зоной. На другой столешнице установили интегрированную мойку, что повышает гигиеничность, избавляя от зазоров.

Установленная столешница
После изготовления получаем ровную поверхность без дефектов, точные размеры и идеально обработанные края и углы.

Заказать похожий эскиз или создать уникальный дизайн-проект, вы можете на нашем сайте. Оставьте заявку на звонок или свяжитесь с дизайнером самостоятельно
