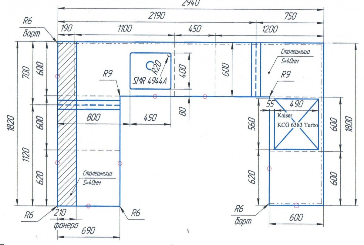
Проект кухонного гарнитура наши дизайнеры создали в форме буквы П, учитывая то, что зона кухни и гостиной совмещенные. Этот вариант расположения отлично подходит для подобной ситуации, так как делает переход плавным и увеличиваем рабочее пространство.
Совместить два пространства по стилю – достаточно сложная задача. Поэтому было решено делать кухню без использования каких-либо выделяющихся деталей. Мы избавились от стандартных ручек, заменив их на интегрированные. Доводчики и прочую фурнитуру использовали австрийской компании Blum.
Фасады изготовили из мдф, покрытых белоснежной глянцевой эмалью.

Столешница сделана из искусственного камня (Montelli Taormina (B)). Цвет - коричневый. С вырезом под варочную панель и интегрированную мойку из нержавеющей стали. 


Заказать похожий эскиз кухни или создать уникальный дизайн-проект, вы можете на нашем сайте. Оставьте заявку на звонок или свяжитесь с дизайнером самостоятельно +7 (966) 249-74-00.