Чтобы обновить кухню, не обязательно менять кухонный гарнитур. Достаточно заменить старую столешницу на новую, из искусственного камня.
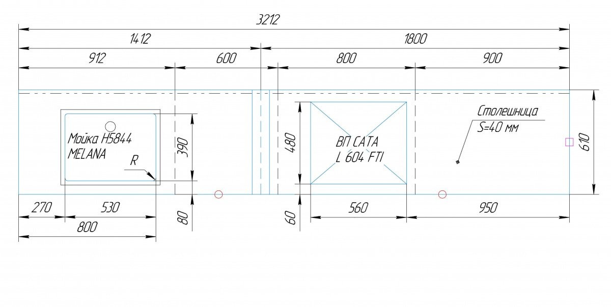
Столешница изготовлена из акрилового камня от производителя Grandex, модель S-217 в белом цвете с вкраплениями. Размер 3200х600 мм.
Заранее сделан вырез под варочную панель с усилением и термозащитой. Мойка Melana, с монтажом под интеграцию.
Дополнительно к столешнице установлены накладные бортики, высотой 40 мм.

Здесь, по желанию клиентки, мы использовали «шелковисто-матовую» полировку вместо привычной «глянцевой».



Заказать похожий эскиз или создать уникальный дизайн-проект, вы можете на нашем сайте. Оставьте заявку на звонок или свяжитесь с дизайнером самостоятельно +7 (966) 249-74-00.