Хозяева будущей кухни пришли к нам с готовым макетом, где были подробно расписаны все пожелания. В результате они хотели получить свой собственный, белый, глянцевый кухонный гарнитур с прочной столешницей из искусственного камня. По их словам, мебель на заказ - это идеальный вариант для тех, кто придерживается определенного стиля и цветовой палитры в интерьере. Заказчики знали это не понаслышке, так как достаточно долго искали необходимый цвет и похожий дизайн.
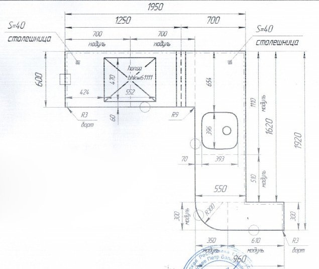
Мы подробно обсудили все детали, которые необходимо учитывать, при изготовлении. Оказалось, готовый вариант планировки не подходит для того, чтобы установить электрическую варочную панель, которая была уже куплена. Пришлось искать нестандартные решения, и создавать новый эскиз кухонного гарнитура.
Теперь для того, чтобы варочная панель была все-таки установлена, мы решили увеличить высоту акриловой столешницы до 40 мм и расположить панель по центру двух модулей.
Эскиз заказчика (неверный) Эскиз дизайнера (исправленный)

Конечный результат данного проекта: мы изготовили кухонный гарнитур в современном стиле: фасады из мдф, покрытые глянцевой эмалью; итальянская фурнитура с доводчиками "плавное движение"; столешница из акрилового камня Montelli Carrara (12 мм) с вырезами для варочной панели и мойки из нержавеющей стали. Кстати, мойка - интегрированная (встроенная под акриловый камень), что позволяет легко убирать мелкий мусор со столешницы, не образуя скопления грязи в стыках. 
Заказать похожий эскиз кухни или создать уникальный дизайн-проект, вы можете на нашем сайте. Оставьте заявку на звонок или свяжитесь с дизайнером самостоятельно +7 (966) 249-74-00.