Угловой кухонный гарнитур с правильно распределенной рабочей зоной – мечта каждой хозяйки. А если добавить к нему удобную систему открывания и автоматическую подсветку, готовка не прекратится даже ночью.
Корпус изготовлен из ЛДСП в цвете «белый снег». Фасады МДФ эмаль белый глянец. Нижние фасады с фрезеровкой под ручки, верхние фасады без фрезеровки.
Вся фурнитура и петли с доводчиками от австрийской компании Blum, известной качеством изделий и новейшими возможностями в использовании.
Установлена подсветка над рабочей зоной с IR-датчиком (бесконтактный датчик движения), нейтрально белого цвета.


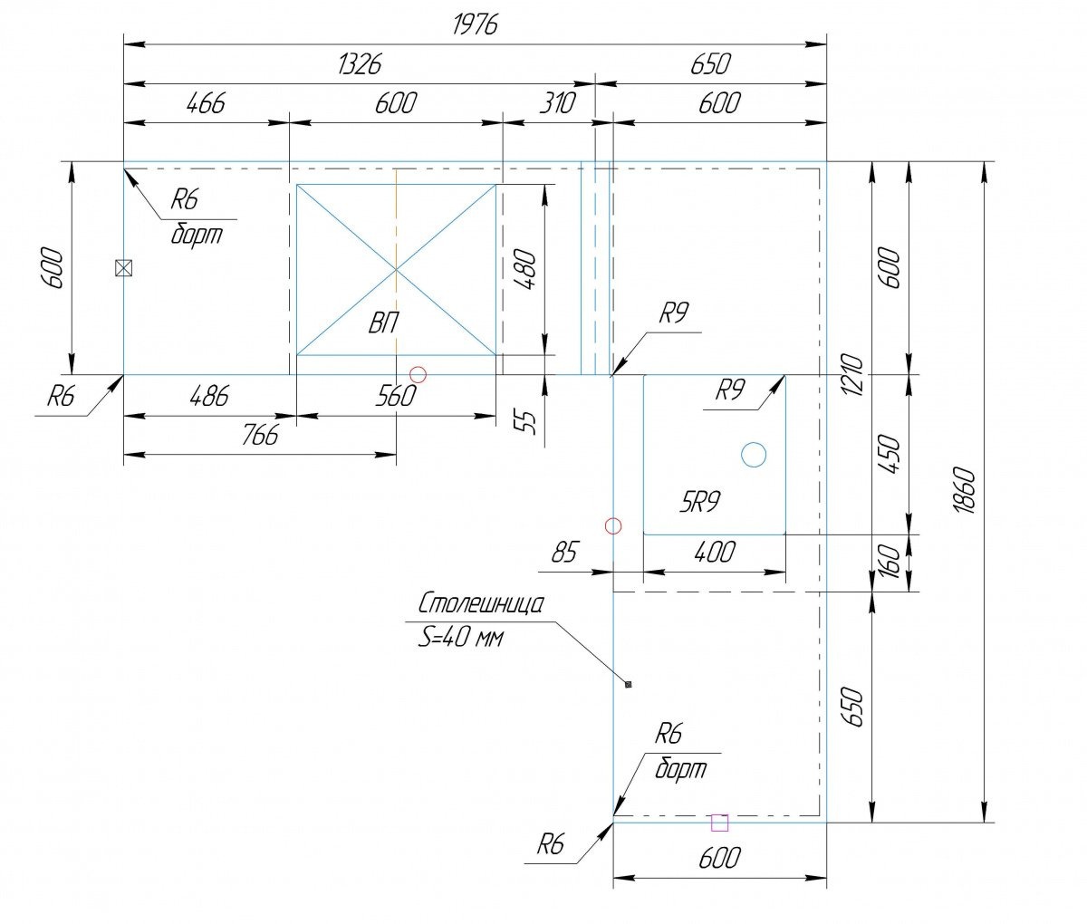
Столешница изготовлена из акрилового камня от производителя Hi-Macs G137, цвет Winter Grey. Размер столешницы 1975х1860 мм.
Дополнительно установлены накладные бортики, высотой 40 мм.
Заранее на столешнице сделаны вырезы под варочную панель с усилением и термозащитой.
Мойка интегрированная, изготовлена из того же акрилового камня, что и столешница.


Заказать похожий эскиз или создать уникальный дизайн-проект, вы можете на нашем сайте. Оставьте заявку на звонок или свяжитесь с дизайнером самостоятельно +7 (966) 249-74-00.