Этот проект мы выполнили для новостройки на ул. Калинина. Площадь помещения позволила разместить просторный кухонный гарнитур в п-образной планировке.
Форма расположения удобна тем, что образует правильный рабочий треугольник, который позволяет быстро и удобно перемещаться в пространстве кухни, а на просторной поверхности столешницы можно разместить гораздо больше бытовой техники.
Фасады изготовлены из ЛДСП Эггер в цвете «серый камень». Это популярный цвет уже нескольких сезонов, который выбирают за практичность в использовании (на нем не видно разводов и потеков), а также за спокойное восприятие оттенка.
Удобная функциональность ящиков и дверей достигнута за счет качественной системы доводчиков.

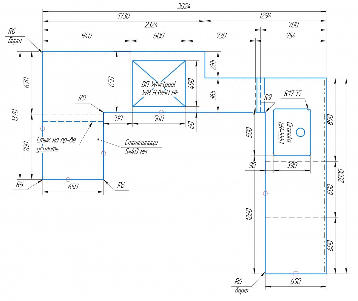
Столешница изготовлена из акрилового камня Hi Macs G109. Установлена кварцевая мойка Granula GR-5551 в цвет столешницы. Смотрится, как цельная композиция.
Заранее сделан вырез под варочную панель.


Заказать похожий эскиз кухни или создать уникальный дизайн-проект, вы можете на нашем сайте. Оставьте заявку на звонок или свяжитесь с дизайнером самостоятельно +7 (966) 249-74-00.