Установка акриловой столешницы на новый кухонный гарнитур – частая практика. Обычные постформинг, которые предлагает большинство мебельных компаний, давно устарели. К тому же, они сильно проигрывают по характеристикам столешницам, изготовленным из искусственного камня.
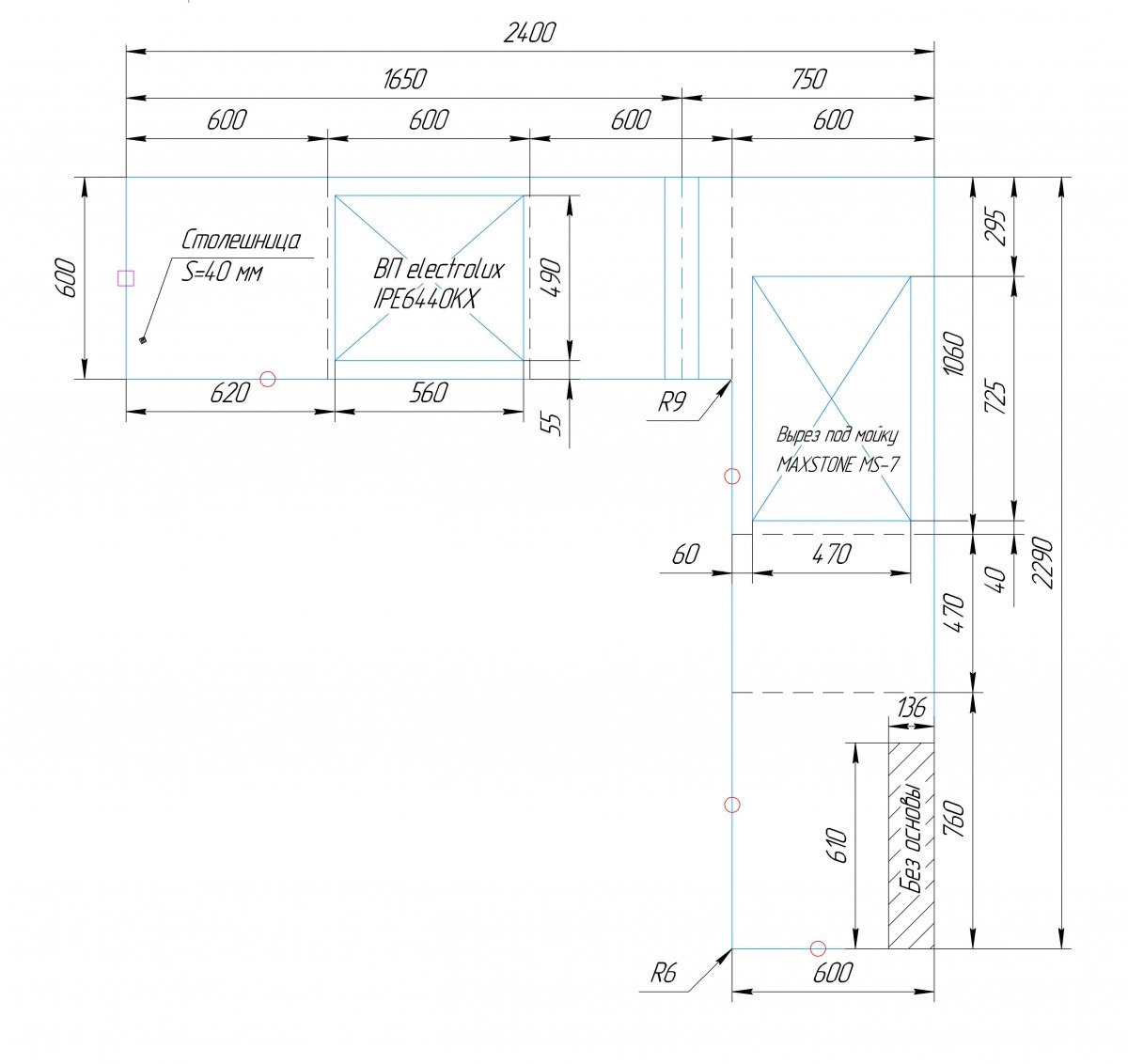
Столешница изготовлена из акрилового камня от производителя Hi-Macs P001, белый цвет с небольшими вкраплениями. Размер столешницы 2400х2270 мм. Поверхность отполирована.


Заранее на изделии сделан вырез под варочную панель с усилением и термозащитой, а также вырез под мойку.



Заказать похожий эскиз или создать уникальный дизайн-проект, вы можете на нашем сайте. Оставьте заявку на звонок или свяжитесь с дизайнером самостоятельно +7 (966) 249-76-00.