Столешница из акрилового камня – прочное изделие с минимальным сроком службы 50 лет.
Для представленного проекта мы изготовили два изделия из искусственного камня: столешницу для нового кухонного гарнитура, а также столешницу для межкомнатного островка размером 990х530.


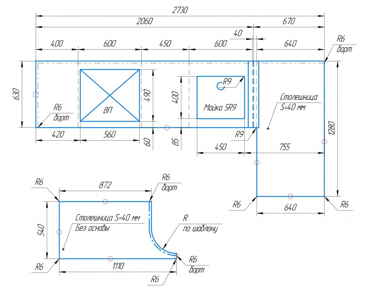
Обе столешницы изготовлены из акрилового камня Grandex A-416 в бежевом цвете с вкраплениями.
На кухонной столешнице заранее был сделан вырез под варочную панель и мойку. Мойка каменная 5R9 A-416.
Дополнительно к столешнице изготовлены накладные бортики высотой 40 мм. Они предотвращают попадание влаги на прилежащую стену.

Для островной столешницы предстояло сделать радиусный срез. В этом преимущество акрилового камня – из него можно выкроить практически любую форму, без потери качества.

Заказать похожий эскиз или создать уникальный дизайн-проект, вы можете на нашем сайте. Оставьте заявку на звонок или свяжитесь с дизайнером самостоятельно +7 (966) 249-74-00.